Київ
Львів
Одеса
Вінниця
Дніпро
Житомир
Запоріжжя
Івано-Франківськ
Кропивницький
Луцьк
Миколаїв
Полтава
Рівне
Суми
Тернопіль
Ужгород
Харків
Херсон
Хмельницький
Черкаси
Чернівці
Чернігів
Так
Змінити місто
Головна
Новобудови
Продаж
Оренда
Мій ЛУН
Девелоперам: реклама на ЛУН
Рієлторам: розмістити оголошення
Власникам: розмістити оголошення через додаток ЛУН
Для ЗМІ
FAQ
Вакансії
Команда підтримки
Iнші проєкти
від
Безбарʼєрність та
комфорт міського
простору
Тренди та інсайти від
експертів нерухомості
Професійна рієлторська мережа
Застосунок оренди квартир на 3D-мапі
Нерухомість
Грузії
сообщество девелоперов
жилых комплексов
Ми в соцмережах
Завантажити в
Завантажити в
ЖК Парковий
ЖК Парковий
Про проєкт
Планування
Моніторинг будівництва
Документи
Контакти
Новини
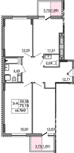
3-кімнатні квартири від
2.59 млн грн
61 тис. $
34 500 — 36 000 грн за м²
$ 820 — 850 за м²
3 кімнати
75.19 м²
Поверхи: 3-13
Будинок 1
4 кв. 2025
Оздоблювальні роботи
Новобудови у місті Бориспіль
Квартира в новобудові Бориспільського району
Комплекси комфорт-класу
Квартири від забудовника Бориспільсільбуд
ЖК Парковий
Планування
Найважливіші оновлення ЖК Парковий
Акції, знижки та спецпропозиції
Нові фотографії з будівництва, аерообльоти
Оновлення цін від відділу продажу
Оновлення документів в реєстрах
Щоденні оновлення в телеграм
Планування