Київ
Львів
Одеса
Вінниця
Дніпро
Житомир
Запоріжжя
Івано-Франківськ
Кропивницький
Луцьк
Миколаїв
Полтава
Рівне
Суми
Тернопіль
Ужгород
Харків
Херсон
Хмельницький
Черкаси
Чернівці
Чернігів
Так
Змінити місто
Головна
Новобудови
Продаж
Оренда
Мій ЛУН
Девелоперам: реклама на ЛУН
Рієлторам: розмістити оголошення
Власникам: розмістити оголошення через додаток ЛУН
Для ЗМІ
FAQ
Вакансії
Команда підтримки
Iнші проєкти
від
Безбарʼєрність та
комфорт міського
простору
Тренди та інсайти від
експертів нерухомості
Професійна рієлторська мережа
Застосунок оренди квартир на 3D-мапі
Нерухомість
Грузії
сообщество девелоперов
жилых комплексов
Ми в соцмережах
Завантажити в
Завантажити в
КМ Green Wood club
КМ Green Wood club
Про проєкт
Типові проєкти
Новини
КМ Green Wood club — Тип 2
295 м²
Котедж
5 спалень
2 поверхи
Планування
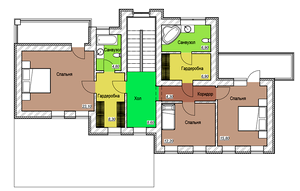
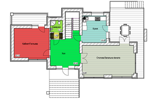
Цокольний поверх
1 поверх
2 поверх
КМ Green Wood club
Інші проєкти цього КМ
є збудовані
Тип 4
22.8 млн грн
540 540 $
5 спалень
350 м²
Котедж
2 поверхи
є збудовані
Тип 6
28.5 млн грн
675 680 $
4 спальні
325 м²
Котедж
2 поверхи
є збудовані
Тип 8
20.9 млн грн
495 500 $
4 спальні
300 м²
Котедж
2 поверхи
Продано
Тип 1
4 спальні
155 м²
Котедж
2 поверхи
Продано
Тип 3
4 спальні
356 м²
Котедж
2 поверхи
Продано
Тип 5
5 спалень
450 м²
Котедж
3 поверхи
Продано
Тип 7
4 спальні
450 м²
Котедж
2 поверхи
Продано
Тип 9
4 спальні
425 м²
Котедж
2 поверхи
Дивитись ще 4 проєкти