КМ Северинівка — Тип 10

Ціна проєкту — 5.06 млн грн
Збудований:  від 5.06 млн грн
546.62 м²
Котедж
4 спальні
2 поверхи
Відділ продажу
КМ Северинівка
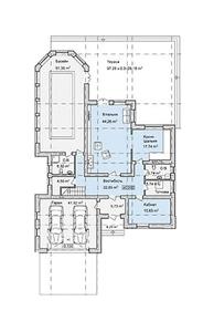
Планування
1 поверх, гараж
2 поверх
КМ Северинівка
Відділ продажу
Пн - Пт: 09:00 - 20:00
Сб - Нд: 10:00 - 19:00
Інші проєкти цього КМ
є збудовані
Тип 2
Тип 2
6.75 млн грн
3 спальні
200 м²
Котедж
2 поверхи
є збудовані
Тип 4
Тип 4
5.48 млн грн
3 спальні
234 м²
Котедж
2 поверхи
є збудовані
Тип 5
Тип 5
3.8 млн грн
3 спальні
270 м²
Котедж
2 поверхи
є збудовані
Тип 7
Тип 7
3.59 млн грн
3 спальні
436.19 м²
Котедж
2 поверхи
є збудовані
Тип 11
Тип 11
3.25 млн грн
4 спальні
164 м²
Таунхаус
2 поверхи
Продано
Тип 1
Тип 1
3 спальні
163.65 м²
Котедж
2 поверхи
Продано
Тип 3
Тип 3
3 спальні
200.2 м²
Дуплекс
2 поверхи
Продано
Тип 8
Тип 8
3 спальні
414.78 м²
Котедж
2 поверхи
Дивитись ще 4 проєкти
Найважливіші оновлення КМ Северинівка
Акції, знижки та спецпропозиції
Статус будівництва, аерообльоти
Оновлення цін від відділу продажу
Нові типові проєкти