Київ
Львів
Одеса
Вінниця
Дніпро
Житомир
Запоріжжя
Івано-Франківськ
Кропивницький
Луцьк
Миколаїв
Полтава
Рівне
Суми
Тернопіль
Ужгород
Харків
Херсон
Хмельницький
Черкаси
Чернівці
Чернігів
Так
Змінити місто
Головна
Новобудови
Продаж
Оренда
Мій ЛУН
Девелоперам: реклама на ЛУН
Рієлторам: розмістити оголошення
Власникам: розмістити оголошення через додаток ЛУН
Для ЗМІ
FAQ
Вакансії
Команда підтримки
Iнші проєкти
від
Безбарʼєрність та
комфорт міського
простору
Тренди та інсайти від
експертів нерухомості
Професійна рієлторська мережа
Застосунок оренди квартир на 3D-мапі
Нерухомість
Грузії
сообщество девелоперов
жилых комплексов
Ми в соцмережах
Завантажити в
Завантажити в
КМ Tivoli
КМ Tivoli
Про проєкт
Типові проєкти
Моніторинг будівництва
Новини
2 фотографії
КМ Tivoli — Тип 1
122 м²
Котедж
3 спальні
2 поверхи
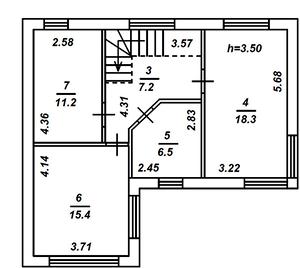
Планування
1 поверх
2 поверх
КМ Tivoli
+38 097 ... Показати
Інші проєкти цього КМ
Продано
Тип 2
3 спальні
121.6 м²
Котедж
2 поверхи
Найважливіші оновлення КМ Tivoli
Акції, знижки та спецпропозиції
Статус будівництва, аерообльоти
Оновлення цін від відділу продажу
Нові типові проєкти
Щоденні оновлення в телеграм