Київ
Львів
Одеса
Вінниця
Дніпро
Житомир
Запоріжжя
Івано-Франківськ
Кропивницький
Луцьк
Миколаїв
Полтава
Рівне
Суми
Тернопіль
Ужгород
Харків
Херсон
Хмельницький
Черкаси
Чернівці
Чернігів
Так
Змінити місто
Головна
Новобудови
Продаж
Оренда
Мій ЛУН
Девелоперам: реклама на ЛУН
Рієлторам: розмістити оголошення
Власникам: розмістити оголошення через додаток ЛУН
Для ЗМІ
FAQ
Вакансії
Команда підтримки
Ми в соцмережах
Завантажити в
Завантажити в
Iнші проєкти
від
дослідження
міського простору
рієлторам: розміщення
оголошень на ЛУН
iOS App оренди
квартир
квартири у світі
від забудовника
спільнота девелоперів
житлових проєктів
подобова оренда
ЖМ Патріотика
ЖМ Патріотика
Про проєкт
Планування
Моніторинг будівництва
Документи
Аерообліт 360
Новини
1-кімнатні квартири
Продажі призупинено
1 кімната
37.87-38 м²
Поверхи: 2-24
ЖБ Батурин (№32)
Будується
Продажі призупинено
1 кімната
37.88-38.01 м²
Поверхи: 3-25
ЖБ Вижниця (№22)
Збудовано
Продажі призупинено
1 кімната
46.17-46.19 м²
Поверхи: 2-24
ЖБ Батурин (№32)
Будується
Продажі призупинено
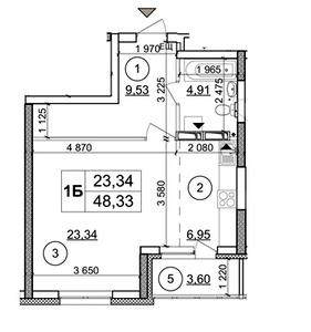
1 кімната
48.33-48.34 м²
Поверхи: 2-24
ЖБ Батурин (№32)
Будується
Новобудови Києва
Новобудови Дарницький район
Дешеві новобудови Києва
Квартири від забудовника Stolitsa Group
ЖМ Патріотика
Планування
Найважливіші оновлення ЖМ Патріотика
Акції, знижки та спецпропозиції
Нові фотографії з будівництва, аерообльоти
Оновлення цін від відділу продажу
Оновлення документів в реєстрах
Щоденні оновлення в телеграм
Планування