Київ
Львів
Одеса
Вінниця
Дніпро
Житомир
Запоріжжя
Івано-Франківськ
Кропивницький
Луцьк
Миколаїв
Полтава
Рівне
Суми
Тернопіль
Ужгород
Харків
Херсон
Хмельницький
Черкаси
Чернівці
Чернігів
Так
Змінити місто
Головна
Новобудови
Продаж
Оренда
Мій ЛУН
Девелоперам: реклама на ЛУН
Рієлторам: розмістити оголошення
Власникам: розмістити оголошення через додаток ЛУН
Для ЗМІ
FAQ
Вакансії
Команда підтримки
Iнші проєкти
від
Безбарʼєрність та
комфорт міського
простору
Тренди та інсайти від
експертів нерухомості
Професійна рієлторська мережа
Застосунок оренди квартир на 3D-мапі
Нерухомість
Грузії
сообщество девелоперов
жилых комплексов
Ми в соцмережах
Завантажити в
Завантажити в
ЖК Poetica. Друга колекція
ЖК Poetica. Друга колекція
Про проєкт
Планування
Моніторинг будівництва
Документи
Аерообліт 360
Контакти
Новини
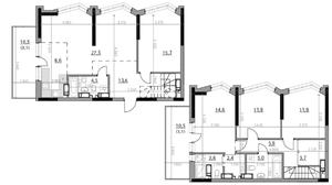
4-кімнатні квартири від
8.35 млн грн
198 тис. $
65 400 грн за м²
$ 1 550 за м²
4 кімнати
127.6 м²
Поверхи: 23
Будинок 2 (Секція 2)
4 кв. 2026
Будується
72 450 грн за м²
$ 1 720 за м²
4 кімнати
164.7 м²
Поверхи: 23
Будинок 1 (Секція 2)
2 кв. 2026
Будується
72 450 грн за м²
$ 1 720 за м²
4 кімнати
174.7 м²
Поверхи: 23
Будинок 1 (Секція 2)
2 кв. 2026
Будується
5-кімнатні квартири
5 кімнат
135.1 м²
Поверхи: 23
Будинок 2 (Секція 2)
4 кв. 2026
Будується
5 кімнат
169.4 м²
Поверхи: 23
Будинок 2 (Секція 2)
4 кв. 2026
Будується
Нерухомість Києва від забудовника
Новобудови Шевченківський район
Новобудови бізнес-класу
Новобудови від забудовника ENSO
ЖК Poetica. Друга колекція
Планування
Найважливіші оновлення ЖК Poetica. Друга колекція
Акції, знижки та спецпропозиції
Нові фотографії з будівництва, аерообльоти
Оновлення цін від відділу продажу
Оновлення документів в реєстрах
Щоденні оновлення в телеграм
Планування