Київ
Львів
Одеса
Вінниця
Дніпро
Житомир
Запоріжжя
Івано-Франківськ
Кропивницький
Луцьк
Миколаїв
Полтава
Рівне
Суми
Тернопіль
Ужгород
Харків
Херсон
Хмельницький
Черкаси
Чернівці
Чернігів
Так
Змінити місто
Головна
Новобудови
Продаж
Оренда
Мій ЛУН
Девелоперам: реклама на ЛУН
Рієлторам: розмістити оголошення
Власникам: розмістити оголошення через додаток ЛУН
Для ЗМІ
FAQ
Вакансії
Команда підтримки
Iнші проєкти
від
Безбарʼєрність та
комфорт міського
простору
Тренди та інсайти від
експертів нерухомості
Професійна рієлторська мережа
Застосунок оренди квартир на 3D-мапі
Нерухомість
Грузії
сообщество девелоперов
жилых комплексов
Ми в соцмережах
Завантажити в
Завантажити в
ЖК Європейські Липки
ЖК Європейські Липки
Про проєкт
Планування
Шоу-рум
Моніторинг будівництва
Документи
Аерообліт 360
Контакти
Новини
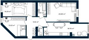
3-кімнатні квартири від
2.92 млн грн
70 тис. $
35 900 — 38 900 грн за м²
$ 850 — 930 за м²
3 кімнати
83.73 м²
Поверхи: 1-6
Будинок 1 (Секція 2)
4 кв. 2025
Оздоблювальні роботи
35 400 — 36 900 грн за м²
$ 840 — 880 за м²
3 кімнати
105.63-108.65 м²
Поверхи: 6
Будинок 2 (Секція 1)
2 кв. 2026
Будується
Контакти відділу продажу
Софіївська Борщагівка, вул. Соборна, 140а
Відділ продажу
Пн - Пт:
09:00 - 19:00
Сб - Нд:
10:00 - 18:00
Записатись на візит
Показати
Написати
Квартири в новобудовах Софіївської Борщагівки
Нерухомість Бучанскього району
Комплекси комфорт-класу
Новобудови від забудовника PRO-GROUP DEVELOPMENT
ЖК Європейські Липки
Планування
Найважливіші оновлення ЖК Європейські Липки
Акції, знижки та спецпропозиції
Нові фотографії з будівництва, аерообльоти
Оновлення цін від відділу продажу
Оновлення документів в реєстрах
Щоденні оновлення в телеграм
Планування