Зараз 9:00 — хвилина мовчання
Будь ласка, зупинімось і вшануємо пам’ять усіх, хто загинув через війну росії проти України. Пам’ятаємо.
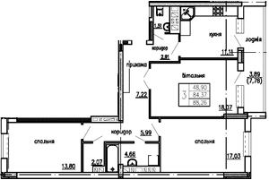
3-кімнатні квартири від 2.75 млн грн
31 100 грн за м²
3 кімнати
88.26 м²
Поверхи: 2-10
Секція 5
3 кв. 2026
Оздоблювальні роботи
Найважливіші оновлення ЖК Загребелля
Акції, знижки та спецпропозиції
Нові фотографії з будівництва, аерообльоти
Оновлення цін від відділу продажу
Оновлення документів в реєстрах