Київ
Львів
Одеса
Вінниця
Дніпро
Житомир
Запоріжжя
Івано-Франківськ
Кропивницький
Луцьк
Миколаїв
Полтава
Рівне
Суми
Тернопіль
Ужгород
Харків
Херсон
Хмельницький
Черкаси
Чернівці
Чернігів
Так
Змінити місто
Головна
Новобудови
Продаж
Оренда
Мій ЛУН
Девелоперам: реклама на ЛУН
Рієлторам: розмістити оголошення
Власникам: розмістити оголошення через додаток ЛУН
Для ЗМІ
FAQ
Вакансії
Команда підтримки
Iнші проєкти
від
Безбарʼєрність та
комфорт міського
простору
Тренди та інсайти від
експертів нерухомості
Професійна рієлторська мережа
Застосунок оренди квартир на 3D-мапі
Нерухомість
Грузії
сообщество девелоперов
жилых комплексов
Ми в соцмережах
Завантажити в
Завантажити в
ЖК Жовтень
ЖК Жовтень
Про проєкт
Квартири
NEW
Планування
Моніторинг будівництва
Документи
Новини
1-кімнатні квартири
Продано
1 кімната
13.6 м²
Поверхи: 1-5
Будинок 1
4 кв. 2015
Збудовано
Продано
1 кімната
14.4 м²
Поверхи: 1-5
Будинок 1
4 кв. 2015
Збудовано
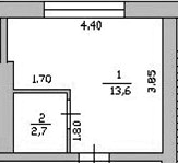
Продано
1 кімната
16.9-17.5 м²
Поверхи: 1-5
Будинок 1
4 кв. 2015
Збудовано
Продано
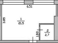
1 кімната
21.5-23.4 м²
Поверхи: 1-5
Будинок 1
4 кв. 2015
Збудовано
Продано
1 кімната
23.6 м²
Поверхи: 1-5
Будинок 1
4 кв. 2015
Збудовано
Продано
1 кімната
24.2-24.5 м²
Поверхи: 1-5
Будинок 1
4 кв. 2015
Збудовано
Продано
1 кімната
27-28.1 м²
Поверхи: 1-5
Будинок 1
4 кв. 2015
Збудовано
Житло в новобудовах Броварів
Дешеві новобудови Броварів
ЖК Жовтень
Планування
Планування