2-кімнатні квартири від 1.68 млн грн
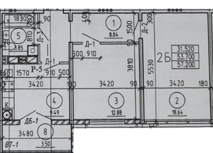
2 кімнати
57.2 м²
Поверхи: 1-10
Будинок 7
4 кв. 2025
Оздоблювальні роботи
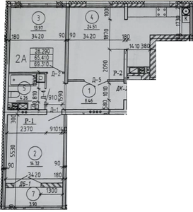
2 кімнати
69.31 м²
Поверхи: 1-10
Будинок 5
4 кв. 2025
Оздоблювальні роботи
Найважливіші оновлення ЖК Вишневий
Акції, знижки та спецпропозиції
Нові фотографії з будівництва, аерообльоти
Оновлення цін від відділу продажу
Оновлення документів в реєстрах