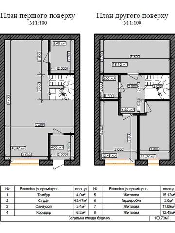
Котедж має роздільний санвузол. На першому поверсі розташовані прихожа, велика кухня-вітальня та санвузол. На другому поверсі знаходяться три спальні, гардероб або санвузол. Можливе перепланування за бажанням власника. Ремонт після будівельників.
Котедж підключений до центрального водопроводу та каналізації. Є лічильники електрики та води. Опалення індивідуальне газове.
Можливе розтермінування при першому внеску від 50%%.
Зовнішні стіни котеджу виконані з пустотілого бетонного блоку, утеплені пінополістиролом 100 мм. Перекриття - залізобетонні плити, перегородки згідно проекту. Фасад оздоблений декоративною штукатуркою. Вікна металопластикові з водовідливами, вхідні двері - металеві. Дах утеплений мінеральною ватою, покриття - металочерепиця. Котедж має власну прибудинкову ділянку та паркомісце.
Котедж розташований у селі з хорошою інфраструктурою. Поруч знаходяться магазини, піцерія, кафе, салони краси, школа, дитячий садок, поліклініка, мийка, тенісний корт, футбольний майданчик, озера та ліс.
Котедж має асфальтований підїзд, вивіз відходів організований.
Планування гнучке, можливе перепланування. На 1-му поверсі розташована простора кухня-вітальня, прихожа та окремий санвузол. На 2-му поверсі знаходяться 3 спальні, гардеробна або додатковий санвузол. Таунхаус збудований, але потребує ремонту після будівельників.
Опалення індивідуальне газове. Є центральний водопровід, центральна каналізація, лічильники, асфальтована дорога, вивіз сміття.
Меблі відсутні.
Можливе розстрочення з першим внеском від 50%%.
Таунхаус має власну ділянку 1 сотка + паркомісце. Вхід на рівні вулиці, безбарєрний доступ.
Поблизу розташовані магазини, супермаркет, ТРЦ, школа, дитячий садок, поліклініка, лікарня, аптека, зупинка транспорту, поштове відділення, ресторани, кафе, піцерія, дитячий майданчик, мийка, тенісний корт, футбольне поле.
Стіни з пустотілого concrete block, утеплені пінополістиролом 100 мм. Перекриття - залізобетонні плити. Фасад - декоративна штукатурка. Вікна та двері - металопластикові з водовідливами та металеві вхідні. Дах утеплений мінватою та покритий металочерепицею.
4 кімнати
без ремонту
105 м²
3-поверховий будинок
Задайте ціну для пошуку
Переглядайте лише ті об'єкти, що вам цікаві.
грн
грн
5.1 млн грн
42 180 грн/м²
Скопіювати посилання
Поскаржитися
Продам котедж з бомбосховищем в Континенті, біля Львова. Без комісії.
Таунхаус має підняту і розширену мансарду та обладнаний під житлову кімнату підвал, який можна використовувати як бомбосховище. Будинок введений в експлуатацію 8 років тому. Ремонт у житловому стані.
Котедж підключений до централізованих водопроводу та каналізації. Опалення електричне, але при бажанні можна підєднати газ. Також є світло.
Котедж мебльований. У комплектацію входить телевізор, швидкісний інтернет та Wi-Fi.
Реальному покупцеві хороший торг. Без комісії. Представник власника. Котедж підходить під умови єОселя.
Котедж має власну земельну ділянку. Додатково є балкон, цоколь, тераса, ванна кімната та душова кабіна.
Котеджне містечко має розвинену інфраструктуру: школу, садочок, супермаркет, стоматологію, квіткову крамницю, майстерню хліба та ін. До центру Львова можна дістатися за 15 хвилин.
Котедж має бомбосховище.
5 кімнат
з ремонтом
120 м²
3-поверховий будинок
2.5 млн грн
23 874 грн/м²
Скопіювати посилання
Поскаржитися
Продаж танхаусу у с. Ременів. БЕЗ КОМІСІЇ ДЛЯ ПОКУПЦЯ!
На першому поверсі розташовані вхідна група, простора кухня-вітальня, санвузол і комора. На другому поверсі знаходяться три окремі спальні та другий санвузол, який можна переобладнати під гардеробну.
У таунхаусі встановлено індивідуальне газове опалення. Підключені центральний водопровід, електрика та центральна каналізація. Забезпечено вивіз відходів.
Можливе розтермінування.
Таунхаус має власну ділянку площею 1 сотку та місце для паркування авто.
Чудова локація з розвинутою інфраструктурою. Поруч є школи, садочки, супермаркети, спортзал.