Киев
Львов
Одесса
Винница
Днепр
Житомир
Запорожье
Ивано-Франковск
Кропивницкий
Луцк
Николаев
Полтава
Ровно
Сумы
Тернополь
Ужгород
Харьков
Херсон
Хмельницкий
Черкассы
Чернигов
Черновцы
Да
Изменить город
Главная
Новостройки
Продажа
Аренда
Мій ЛУН
Девелоперам: реклама на ЛУН
Риелторам: разместить объявление
Собственникам: разместить объявление через приложение ЛУН
Для СМИ
FAQ
Вакансии
Команда поддержки
Другие проекты
от
Безбарьерность и
комфорт городского
пространства
Тренды и инсайты от
экспертов недвижимости
Профессиональная риелторская сеть
Приложение для аренды квартир на 3D карте
Недвижимость
Грузии
сообщество девелоперов
жилых комплексов
Мы в соцсетях
Скачать в
Скачать в
ЖК Паркове містечко (7 очередь)
ЖК Паркове містечко (7 очередь)
О проекте
Планировки
Мониторинг строительства
Документы
Контакты
Новости
1-комнатные квартиры от
1.59 млн грн
38 тыс. $
41 850 грн за м²
$ 1 000 за м²
1 комната
38.71-39.21 м²
Этажи: 2-10
Дом 1 (Секция 1)
4 кв. 2025
Строится
41 850 грн за м²
$ 1 000 за м²
1 комната
39.65-40.46 м²
Этажи: 2
Дом 2 (Секция 1)
4 кв. 2025
Строится
41 850 грн за м²
$ 1 000 за м²
1 комната
42.49 м²
Этажи: 2-10
Дом 1 (Секция 1)
4 кв. 2025
Строится
41 850 грн за м²
$ 1 000 за м²
1 комната
42.51-44.46 м²
Этажи: 4-10
Дом 2 (Секция 2)
4 кв. 2025
Строится
41 850 грн за м²
$ 1 000 за м²
1 комната
43.3 м²
Этажи: 2, 4-10
Дом 4
4 кв. 2025
Отделочные работы
41 850 грн за м²
$ 1 000 за м²
1 комната
43.63 м²
Этажи: 2
Дом 2 (Секция 2)
4 кв. 2025
Строится
41 850 грн за м²
$ 1 000 за м²
1 комната
44.5 м²
Этажи: 4-10
Дом 3
4 кв. 2025
Отделочные работы
41 850 грн за м²
$ 1 000 за м²
1 комната
44.56 м²
Этажи: 2-10
Дом 1 (Секция 1)
4 кв. 2025
Строится
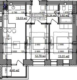
2-комнатные квартиры от
2.38 млн грн
57 тыс. $
41 850 грн за м²
$ 1 000 за м²
2 комнаты
57.24 м²
Этажи: 2, 4-10
Дом 1 (Секция 2)
4 кв. 2025
Строится
41 850 грн за м²
$ 1 000 за м²
2 комнаты
61.86-65.52 м²
Этажи: 2
Дом 3
4 кв. 2025
Отделочные работы
41 850 грн за м²
$ 1 000 за м²
2 комнаты
62.45-62.61 м²
Этажи: 4-10
Дом 3
4 кв. 2025
Отделочные работы
41 850 грн за м²
$ 1 000 за м²
2 комнаты
63.45-64.78 м²
Этажи: 2, 4-10
Дом 5 (Секция 2)
4 кв. 2025
Отделочные работы
41 850 грн за м²
$ 1 000 за м²
2 комнаты
65.09-66.88 м²
Этажи: 2, 4-10
Дом 4
4 кв. 2025
Отделочные работы
41 850 грн за м²
$ 1 000 за м²
2 комнаты
67.15-68.23 м²
Этажи: 2
Дом 3
4 кв. 2025
Отделочные работы
41 850 грн за м²
$ 1 000 за м²
2 комнаты
67.31-67.63 м²
Этажи: 2, 4-10
Дом 5 (Секция 2)
4 кв. 2025
Отделочные работы
41 850 грн за м²
$ 1 000 за м²
2 комнаты
67.32-69.28 м²
Этажи: 2, 4-10
Дом 6 (Секция 1)
4 кв. 2025
Строится
41 850 грн за м²
$ 1 000 за м²
2 комнаты
69.36-69.69 м²
Этажи: 2
Дом 5 (Секция 1)
4 кв. 2025
Отделочные работы
3-комнатные квартиры от
2.97 млн грн
71 тыс. $
41 850 грн за м²
$ 1 000 за м²
3 комнаты
86.83 м²
Этажи: 2, 4-10
Дом 2 (Секция 1)
4 кв. 2025
Строится
41 850 грн за м²
$ 1 000 за м²
3 комнаты
90.71 м²
Этажи: 2, 4-10
Дом 6 (Секция 1)
4 кв. 2025
Строится
Новостройки в городе Ивано-Франковск
Престижное жилье Ивано-Франковска
Новостройки от застройщика Новый Дом Буд
ЖК Паркове містечко (7 очередь)
Планировки
Самые важные обновления ЖК Паркове містечко (7 очередь)
Акции, скидки и спецпредложения
Новые фотографии со строительства, аэрооблеты
Обновления цен от отдела продаж
Обновление документов в реестрах
Ежедневные обновления в телеграм
Планировка
Це російськомовна версія
Інколи пошукові системи вважають, що користувачам потрібна саме вона, але завдяки цьому повідомленню ви можете змінити мову в один клік
Російською
Українською