Новобудови
Продаж
Оренда
Мій ЛУН
Інше
Девелоперам: реклама на ЛУН
Рієлторам: розмістити оголошення
Власникам: розміщення через ЛУН додаток
Для ЗМІ
FAQ
Вакансії
Команда підтримки
грн
$
Iнші проєкти
від
грн
$
Безбарʼєрність та
комфорт міського
простору
Тренди та інсайти від
експертів нерухомості
Професійна рієлторська мережа
Застосунок оренди квартир на 3D-мапі
Нерухомість
Грузії
Спільнота девелоперів
житлових проєктів
Ми в соцмережах
Завантажити в
Завантажити в
Резиденція Парк-Хаус
Резиденція Парк-Хаус
Про проєкт
Планування
Моніторинг будівництва
Документи
Аерообліт 360
Новини
3-кімнатні квартири
Продаж не ведеться
3 кімнати
94.3 м²
Поверхи: 1
Будинок 1
Будівництво зупинено
Продаж не ведеться
3 кімнати
108.5 м²
Поверхи: 3
Будинок 1
Будівництво зупинено
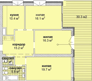
4-кімнатні квартири
Продаж не ведеться
4 кімнати
120.4 м²
Поверхи: 2
Будинок 1
Будівництво зупинено
Новобудови Харкова
Квартира в новобудові Шевченківського району
Новобудови бізнес-класу
Квартири від забудовника С-Інвест
Резиденція Парк-Хаус
Планування
Планування