КМ Pine Wood • mini

КМ Pine Wood • mini — Тип 2

150 м²
Котедж
4 спальні
2 поверхи
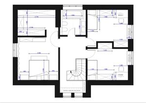
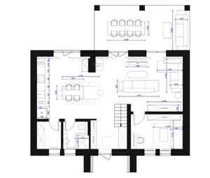
Планування
1 поверх
2 поверх
КМ Pine Wood • mini