Новобудови
Продаж
Оренда
Мій ЛУН
Інше
Завантажити в
Завантажити в
Девелоперам: реклама на ЛУН
Рієлторам: розмістити оголошення
Власникам: розміщення через ЛУН додаток
Для ЗМІ
FAQ
Вакансії
Команда підтримки
грн
$
Iнші проєкти
від
грн
$
Безбарʼєрність та
комфорт міського
простору
Тренди та інсайти від
експертів нерухомості
Професійна рієлторська мережа
Застосунок оренди квартир на 3D-мапі
Нерухомість
Грузії
Спільнота девелоперів
житлових проєктів
Ми в соцмережах
КМ Module House Polyana
КМ Module House Polyana
Про проєкт
Типові проєкти
Новини
4 фотографії
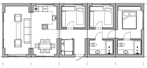
КМ Module House Polyana — Тип 4
Ціна проєкту
від 4.45 млн грн
від 100 630 $
В проєкті:
4.45 млн грн
100 630 $
98 м²
Котедж
3 спальні
1 поверх
Планування
1 поверх
КМ Module House Polyana