Новобудови
Продаж
Оренда
Мій ЛУН
Інше
Девелоперам: реклама на ЛУН
Рієлторам: розмістити оголошення
Власникам: розміщення через ЛУН додаток
Для ЗМІ
FAQ
Вакансії
Команда підтримки
грн
$
Iнші проєкти
від
грн
$
Безбарʼєрність та
комфорт міського
простору
Тренди та інсайти від
експертів нерухомості
Професійна рієлторська мережа
Застосунок оренди квартир на 3D-мапі
Нерухомість
Грузії
Спільнота девелоперів
житлових проєктів
Ми в соцмережах
Завантажити в
Завантажити в
КМ Honey Hills
КМ Honey Hills
Про проєкт
Типові проєкти
Новини
КМ Honey Hills — Каліфорнія
Ціна проєкту
— 8.73 млн грн
— 200 000 $
Збудований:
від 8.73 млн грн
від 200 000 $
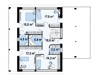
239 м²
Котедж
4 спальні
2 поверхи
Планування
1 поверх, гараж
2 поверх
КМ Honey Hills