Новобудови
Продаж
Оренда
Мій ЛУН
Інше
Завантажити в
Завантажити в
Девелоперам: реклама на ЛУН
Рієлторам: розмістити оголошення
Власникам: розміщення через ЛУН додаток
Для ЗМІ
FAQ
Вакансії
Команда підтримки
грн
$
Iнші проєкти
від
грн
$
Безбарʼєрність та
комфорт міського
простору
Тренди та інсайти від
експертів нерухомості
Професійна рієлторська мережа
Застосунок оренди квартир на 3D-мапі
Нерухомість
Грузії
Спільнота девелоперів
житлових проєктів
Ми в соцмережах
КМ Сухий Лиман
КМ Сухий Лиман
Про проєкт
Типові проєкти
Новини
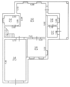
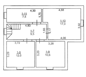
КМ Сухий Лиман — Тип 23
137.2 м²
Котедж
4 спальні
2 поверхи
Планування
1 поверх, гараж
2 поверх
КМ Сухий Лиман