КМ Святобор — Гостьовий будинок

Ціна проєкту від 4.31 млн грн
В проєкті:  4.31 млн грн
150 м²
Котедж
5 спалень
2 поверхи
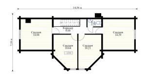
Планування
1 поверх
2 поверх
КМ Святобор
Найважливіші оновлення КМ Святобор
Акції, знижки та спецпропозиції
Статус будівництва, аерообльоти
Оновлення цін від відділу продажу
Нові типові проєкти