Дуплекси Зубра Hills

Дуплекси Зубра Hills — Тип 1

Ціна проєкту від 5.11 млн грн
В проєкті:  5.11 млн грн
145 м²
Дуплекс
4 спальні
2 поверхи
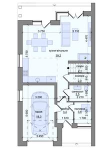
Планування
1 поверх, гараж
2 поверх
Дуплекси Зубра Hills
Найважливіші оновлення Дуплекси Зубра Hills
Акції, знижки та спецпропозиції
Статус будівництва, аерообльоти
Оновлення цін від відділу продажу
Нові типові проєкти