вул. Чехова, 5

вул. Чехова, 5 — Тип 2

126 м²
Котедж
4 спальні
2 поверхи
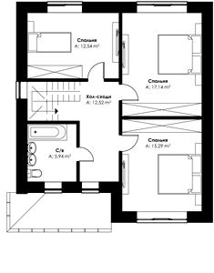
Планування
1 поверх
2 поверх
вул. Чехова, 5