Новостройки
Продажа
Аренда
Мій ЛУН
Другое
Скачать в
Скачать в
Девелоперам: реклама на ЛУН
Риелторам: разместить объявление
Собственникам: размещение через приложение ЛУН
Для СМИ
FAQ
Вакансии
Команда поддержки
грн
$
Другие проекты
от
грн
$
Безбарьерность и
комфорт городского
пространства
Тренды и инсайты от
экспертов недвижимости
Профессиональная риелторская сеть
Приложение для аренды квартир на 3D карте
Недвижимость
Грузии
Сообщество девелоперов
жилых комплексов
Мы в соцсетях
ул. Котырло, 34
ул. Котырло, 34
О проекте
Типовые проекты
Мониторинг строительства
Новости
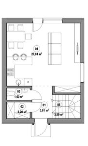
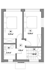
ул. Котырло, 34 — Тип 1
76 м²
Таунхаус
2 спальни
2 этажа
Планировки
1 этаж
2 этаж
ул. Котырло, 34
Це російськомовна версія
Інколи пошукові системи вважають, що користувачам потрібна саме вона, але завдяки цьому повідомленню ви можете змінити мову в один клік
Російською
Українською