Новостройки
Продажа
Аренда
Мій ЛУН
Другое
Скачать в
Скачать в
Девелоперам: реклама на ЛУН
Риелторам: разместить объявление
Собственникам: размещение через приложение ЛУН
Для СМИ
FAQ
Вакансии
Команда поддержки
грн
$
Другие проекты
от
грн
$
Безбарьерность и
комфорт городского
пространства
Тренды и инсайты от
экспертов недвижимости
Профессиональная риелторская сеть
Приложение для аренды квартир на 3D карте
Недвижимость
Грузии
Сообщество девелоперов
жилых комплексов
Мы в соцсетях
ул. Гайдея, 10
ул. Гайдея, 10
О проекте
Типовые проекты
Новости
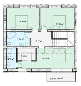
ул. Гайдея, 10 — Тип 2
157.06 м²
Таунхаус
3 спальни
2 этажа
Планировки
1 этаж, гараж
2 этаж
ул. Гайдея, 10
Це російськомовна версія
Інколи пошукові системи вважають, що користувачам потрібна саме вона, але завдяки цьому повідомленню ви можете змінити мову в один клік
Російською
Українською