КГ Mulberry Homes — Leaminton

174 м²
Коттедж
3 спальни
2 этажа
Отдел продаж
КГ Mulberry Homes
Работает по предварительной записи
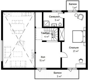
Планировки
1 этаж
2 этаж
КГ Mulberry Homes
Отдел продаж
Пн - Пт: 09:00 - 18:00
Сб: выходной
Вс: 09:00 - 18:00
Работает по предварительной записи
Другие проекты этого КГ
есть построенные
Henley
Henley
5.13 млн грн
3 спальни
122 м²
Коттедж
2 этажа
есть построенные
Cambridge
Cambridge
5.42 млн грн
3 спальни
129 м²
Коттедж
2 этажа
есть построенные
Oxford
Oxford
5.59 млн грн
4 спальни
133 м²
Коттедж
2 этажа
есть построенные
Bristol
Bristol
4.08 млн грн
3 спальни
97 м²
Коттедж
1 этаж
Oxford lifestyle
Oxford lifestyle
от 8.95 млн грн
3 спальни
213 м²
Коттедж
2 этажа
Cambridge B1
Cambridge B1
от 5.51 млн грн
3 спальни
131 м²
Коттедж
2 этажа
Cambridge B2
Cambridge B2
от 5.63 млн грн
3 спальни
134 м²
Коттедж
2 этажа
Смотреть еще 3 проекта
Самые важные обновления КГ Mulberry Homes
Акции, скидки и спецпредложения
Статус строительства, аэрооблеты
Обновления цен от отдела продаж
Новые типовые проекты
Це російськомовна версія
Інколи пошукові системи вважають, що користувачам потрібна саме вона, але завдяки цьому повідомленню ви можете змінити мову в один клік
Українською