КГ Kanevo — Тип 7

180 м²
Коттедж
3 спальни
2 этажа
Отдел продаж
КГ Kanevo
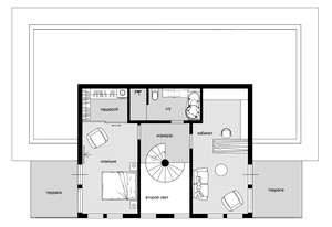
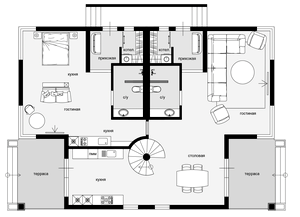
Планировки
1 этаж
2 этаж
КГ Kanevo
Отдел продаж
Пн - Вс: 09:00 - 22:00
Другие проекты этого КГ
есть построенные
Тип 3 (без ремонта)
Тип 3 (без ремонта)
3.32 млн грн
4 спальни
115 м²
Таунхаус
2 этажа
есть построенные
Тип 4 (без ремонта)
Тип 4 (без ремонта)
2.39 млн грн
2 спальни
68 м²
Таунхаус
2 этажа
Тип 6
Тип 6
от 3.54 млн грн
3 спальни
120 м²
Дуплекс
2 этажа
Тип 8
Тип 8
от 3.98 млн грн
3 спальни
92 м²
Коттедж
1 этаж
Тип 9
Тип 9
от 3.98 млн грн
3 спальни
92 м²
Коттедж
1 этаж
Смотреть еще 1 проект
Самые важные обновления КГ Kanevo
Акции, скидки и спецпредложения
Статус строительства, аэрооблеты
Обновления цен от отдела продаж
Новые типовые проекты
Це російськомовна версія
Інколи пошукові системи вважають, що користувачам потрібна саме вона, але завдяки цьому повідомленню ви можете змінити мову в один клік
Українською