КГ Сосновый берег

КГ Сосновый берег — Пушкинский

508 м²
Коттедж
5 спален
3 этажа
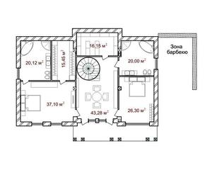
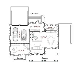
Планировки
1 этаж
2 этаж
3 этаж
КГ Сосновый берег
Другие проекты этого КГ
есть построенные
Воронцовский
Воронцовский
38.27 млн грн
5 спален
512 м²
Коттедж
3 этажа
есть построенные
Александровский
Александровский
38.27 млн грн
5 спален
595 м²
Коттедж
3 этажа
Самые важные обновления КГ Сосновый берег
Акции, скидки и спецпредложения
Статус строительства, аэрооблеты
Обновления цен от отдела продаж
Новые типовые проекты
Це російськомовна версія
Інколи пошукові системи вважають, що користувачам потрібна саме вона, але завдяки цьому повідомленню ви можете змінити мову в один клік
Українською