КГ Озерный — Тип 9 (с ремонтом)

209 м²
Коттедж
6 спален
2 этажа
КГ Озерный
Отдел продаж
КГ Озерный
Планировки
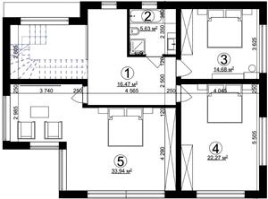
1 этаж
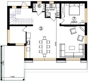
2 этаж
КГ Озерный
КГ Озерный
Отдел продаж
Пн - Вс: 09:00 - 20:00
Другие проекты этого КГ
Тип 4
Тип 4
от 12.61 млн грн
3 спальни
150 м²
Коттедж
1 этаж
Тип 4 (с ремонтом)
Тип 4 (с ремонтом)
от 16.59 млн грн
3 спальни
150 м²
Коттедж
1 этаж
Тип 11 (с ремонтом)
Тип 11 (с ремонтом)
от 21.34 млн грн
5 спален
193 м²
Коттедж
1 этаж
Тип 12
Тип 12
от 17.4 млн грн
6 спален
207 м²
Коттедж
2 этажа
Тип 13
Тип 13
от 22.69 млн грн
6 спален
270 м²
Коттедж
2 этажа
Тип 14
Тип 14
от 22.36 млн грн
5 спален
266 м²
Коттедж
2 этажа
Смотреть еще 2 проекта
Самые важные обновления КГ Озерный
Акции, скидки и спецпредложения
Статус строительства, аэрооблеты
Обновления цен от отдела продаж
Новые типовые проекты
Це російськомовна версія
Інколи пошукові системи вважають, що користувачам потрібна саме вона, але завдяки цьому повідомленню ви можете змінити мову в один клік
Українською