Новостройки
Продажа
Аренда
Мій ЛУН
Другое
Девелоперам: реклама на ЛУН
Риелторам: разместить объявление
Собственникам: размещение через приложение ЛУН
Для СМИ
FAQ
Вакансии
Команда поддержки
грн
$
Другие проекты
от
грн
$
Безбарьерность и
комфорт городского
пространства
Тренды и инсайты от
экспертов недвижимости
Профессиональная риелторская сеть
Приложение для аренды квартир на 3D карте
Недвижимость
Грузии
Сообщество девелоперов
жилых комплексов
Мы в соцсетях
Скачать в
Скачать в
ЖК Сороковая жемчужина
ЖК Сороковая жемчужина
О проекте
Квартиры
NEW
Планировки
Мониторинг строительства
Документы
Аэрооблет 360
Новости
1-комнатные квартиры
Продано
1 комната
41.59-43.9 м²
Этажи: 18
2 кв. 2019
Построено
Продано
1 комната
43.95-43.97 м²
Этажи: 6, 8, 10-11, 13-14, 16-17
2 кв. 2019
Построено
Продано
1 комната
44.58-45.47 м²
Этажи: 18-19
2 кв. 2019
Построено
Продано
1 комната
50.27 м²
Этажи: 18
2 кв. 2019
Построено
2-комнатные квартиры
Продано
2 комнаты
58.68-58.78 м²
Этажи: 6, 8-11, 13-17
2 кв. 2019
Построено
Продано
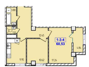
2 комнаты
60.53 м²
Этажи: 3-17
2 кв. 2019
Построено
Продано
2 комнаты
63.26-63.47 м²
Этажи: 18
2 кв. 2019
Построено
Продано
2 комнаты
65.64 м²
Этажи: 18-19
2 кв. 2019
Построено
3-комнатные квартиры
Продано
3 комнаты
80.94 м²
Этажи: 3
2 кв. 2019
Построено
Продано
3 комнаты
83.23-87.74 м²
Этажи: 5, 8-9, 16-17
2 кв. 2019
Построено
Все ЖК Лиманки
Новостройки от застройщика Kadorr Group
ЖК Сороковая жемчужина
Планировки
Планировка
Це російськомовна версія
Інколи пошукові системи вважають, що користувачам потрібна саме вона, але завдяки цьому повідомленню ви можете змінити мову в один клік
Російською
Українською