2-комнатные квартиры от 1.46 млн грн
2 комнаты
77.71 м²
Этажи: 2-14
Секция 2
Отделочные работы
3-комнатные квартиры от 2.14 млн грн
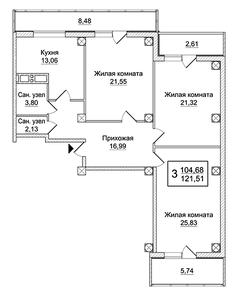
3 комнаты
121.51 м²
Этажи: 2-14
Секция 1
Отделочные работы
Самые важные обновления ЖК Слобожанский квартал
Акции, скидки и спецпредложения
Новые фотографии со строительства, аэрооблеты
Обновления цен от отдела продаж
Обновление документов в реестрах
Це російськомовна версія
Інколи пошукові системи вважають, що користувачам потрібна саме вона, але завдяки цьому повідомленню ви можете змінити мову в один клік
Українською