Новостройки
Продажа
Аренда
Мій ЛУН
Другое
Скачать в
Скачать в
Девелоперам: реклама на ЛУН
Риелторам: разместить объявление
Собственникам: размещение через приложение ЛУН
Для СМИ
FAQ
Вакансии
Команда поддержки
грн
$
Другие проекты
от
грн
$
Безбарьерность и
комфорт городского
пространства
Тренды и инсайты от
экспертов недвижимости
Профессиональная риелторская сеть
Приложение для аренды квартир на 3D карте
Недвижимость
Грузии
Сообщество девелоперов
жилых комплексов
Мы в соцсетях
ЖК Водограй
ЖК Водограй
О проекте
Планировки
Мониторинг строительства
Новости
1-комнатные квартиры
1 комната
46.3-46.6 м²
Этажи: 2-7
Дом 1
Построено
Продажа не ведется
1 комната
40.8 м²
Этажи: 2-8
Дом 2
Заморожено
Продажа не ведется
1 комната
42.8 м²
Этажи: 2-8
Дом 2
Заморожено
2-комнатные квартиры
2 комнаты
67.3 м²
Этажи: 2-7
Дом 1
Построено
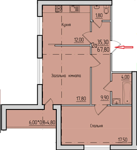
2 комнаты
67.8 м²
Этажи: 2-7
Дом 1
Построено
2 комнаты
69.7 м²
Этажи: 2-7
Дом 1
Построено
2 комнаты
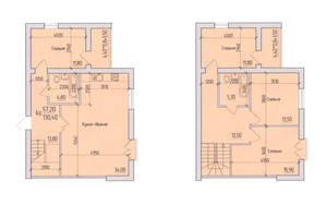
88.3-88.8 м²
Этажи: 8
Дом 1
Построено
Продажа не ведется
2 комнаты
54.4-57.3 м²
Этажи: 2-8
Дом 2
Заморожено
Продажа не ведется
2 комнаты
63 м²
Этажи: 2-8
Дом 2
Заморожено
Продажа не ведется
2 комнаты
71 м²
Этажи: 2-8
Дом 2
Заморожено
4-комнатные квартиры
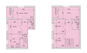
4 комнаты
130.4 м²
Этажи: 8
Дом 1
Построено
5-комнатные квартиры
5 комнат
137.9 м²
Этажи: 8
Дом 1
Построено
5 комнат
140.1 м²
Этажи: 8
Дом 1
Построено
Недвижимость Гостомеля от застройщика
ЖК Водограй
Планировки
Планировка
Це російськомовна версія
Інколи пошукові системи вважають, що користувачам потрібна саме вона, але завдяки цьому повідомленню ви можете змінити мову в один клік
Російською
Українською