2-комнатные квартиры от 2.52 млн грн
35 000 грн за м²
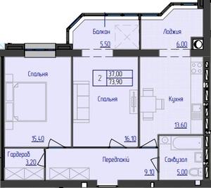
2 комнаты
73.9 м²
Этажи: 5-12
Дом 12
3 кв. 2026
Построено
35 000 грн за м²
2 комнаты
75.8 м²
Этажи: 5-12
Дом 12
3 кв. 2026
Построено
Самые важные обновления ЖК Атлант
Акции, скидки и спецпредложения
Новые фотографии со строительства, аэрооблеты
Обновления цен от отдела продаж
Обновление документов в реестрах
Це російськомовна версія
Інколи пошукові системи вважають, що користувачам потрібна саме вона, але завдяки цьому повідомленню ви можете змінити мову в один клік
Українською